tuinen om in te leven


















Projecten


















































Tuindromen
Door een tuinontwerp op maat ontstaat er een uniek ontwerp dat aansluit op jouw wensen, smaak en budget. Hierbij wordt rekening gehouden met de ligging van de tuin, de omringende bebouwing en andere elementen zoals bomen of waterpartijen. Het ontwerpproces bestaat uit verschillende stappen. Zo zal er eerst een gesprek plaatsvinden om jouw wensen in kaart te brengen. Vervolgens kan er een schetsontwerp worden gemaakt en uiteindelijk een definitief ontwerp. Hierdoor kun je optimaal genieten van jouw tuin en ben je verzekerd van een mooie en passende buitenruimte.
Het ontwerpproces start met een vrijblijvend kennismakingsgesprek
Hierin bespreken wij samen de tuinwensen en bekijk ik hoe de ligging van de tuin of groene ruimte is gesitueerd. Hierna volgt een eerste schetsontwerp en moodboard met sfeerbeelden en mogelijke materialen….
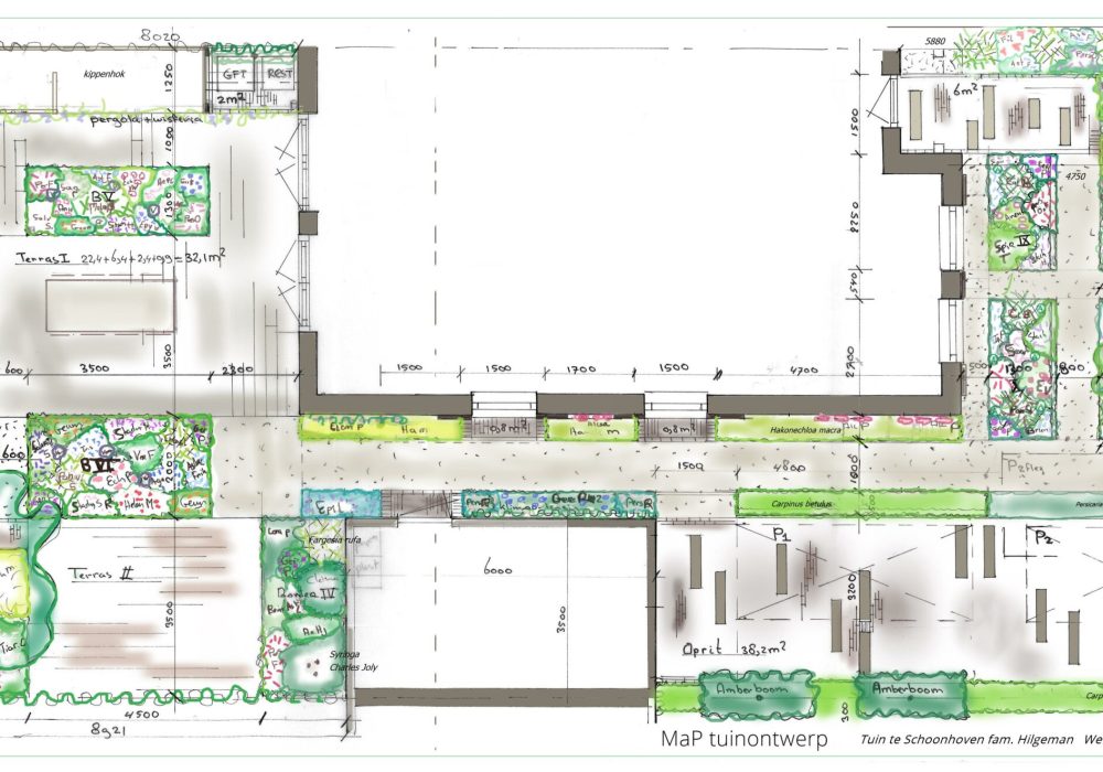
Beplantingsplan
Het beplantingsplan is het sluitstuk van het tuinontwerp, hierin wordt tot in detail uitgewerkt welke planten waar staan. Zo ontstaat er een compositie die mooi op elkaar is afgestemd en er het hele jaar iets te beleven is in de tuin.





Voor iedere tuin een ontwerp op maat
Mijn eerste tuin of ....
Ben jij een beginnende tuinier? of al genoeg ervaring en vindt jij het leuk om zelf je tuin te onderhouden. Er is altijd een passende oplossing. Ook grotere groen projecten zoals in de openbare ruimte rondom scholen of bedrijven passen in mijn werkwijze. Samen een mooie groene omgeving creƫren is de basis voor ieder project.
Biodiversiteit
Extra aandacht voor het ecosysteem in de tuin. Met de juiste inrichting en plantkeuze kan ook een kleine tuin ervoor zorgen dat insecten vogels en kleine zoogdieren jouw tuin gaan opzoeken.
Aanleg
Afhankelijk van de wensen kan het ontwerp in zijn geheel worden aangelegd, of kan er deels zelf aan de slag worden gegaan. Met het beplantingsplan bij de hand, samen met aanwijzingen of hulp van mij, kunnen de planten zelf worden geplant en kan het genieten al bij de aanleg beginnen.
3D model
Om het ontwerp te verduidelijken kun jij alvast een kijkje nemen via 3D model en al virtueel door de tuin lopen.